Cardeston House

Cardeston House

 


Project Overview

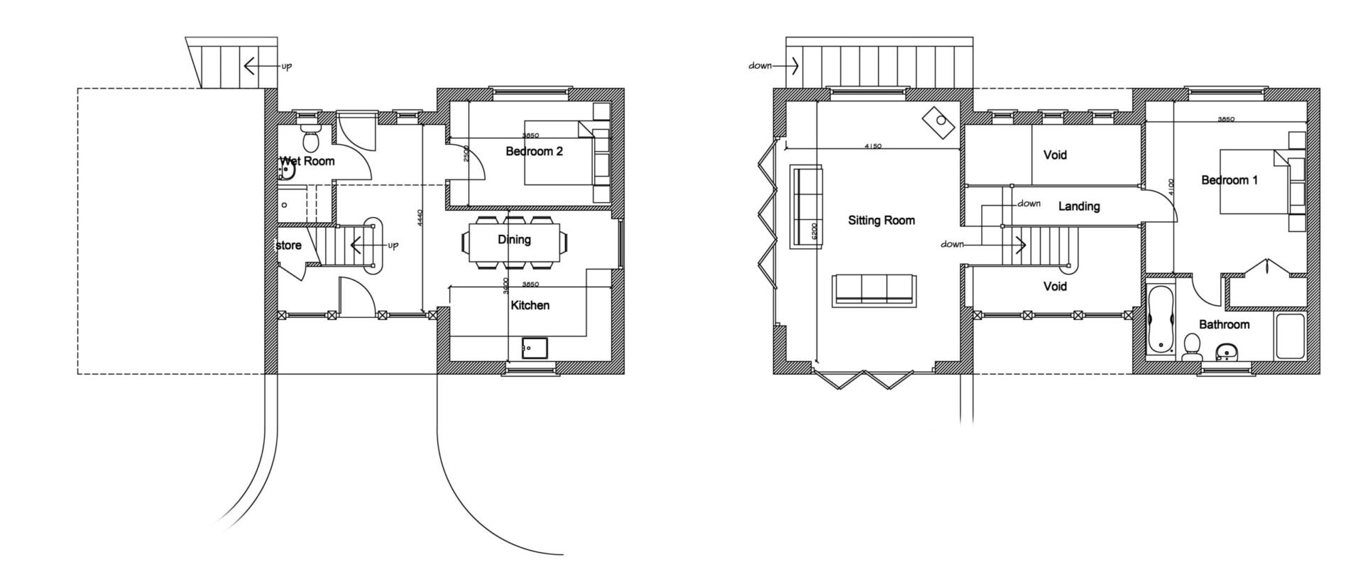
We were approached by a client wanting to transform a small segment of land under the local needs, single plot exception scheme to allow for a 100m2 dwelling and ancillary double garage.

Located in Cardeston, 7 miles to the West of Shrewsbury, this site presented several elements to contend with such as difficult topography and a sensitivity based around visual impacts on the adjacent church.

The topography was contentious, but we used this to our advantage by building into the landscape. This allowed us to take advantage of geothermal heat retention and effectively lowered the height of the dwelling.

Local stone was then used as part of a carefully selected materials palette including the use of soft, pastel coloured brickwork and timber joinery to unify the buildings into their environs.

The result is a beautiful dwelling that provides stunning views across the fields of Cardeston, whilst effortlessly blending into its environment and maximising every inch of the allowed footprint.

 

  • Private Client
  • Cardeston, Shropshire
  • Complete
Delivered by
Richard Cole
Back to Architecture