Kingsland.

Kingsland.

 


Project Overview

For this project in the Kingsland area of Shrewsbury, we were tasked with looking at the potential options for the alteration and refurbishment of a 1960s detached family home.

As existing, the current ground floor layout is convoluted with a series of individual interlinked rooms. Layout of rooms are stipulated by the existing door and window openings with the kitchen acting as more of a circulation space. There is only a limited relationship with the rear garden accessed via one door from the kitchen. The rear garden is also lacking in much useable space due to its steep topography and tiered nature.

Two schemes were required to be designed; one being a complete redesign turning this home into a large four or five bed property with multiple ancillary spaces such as work from home offices, games room, cinema room and wine cellar. The second option, a much lighter touch featured a side extension into and above the existing garage.

The objective of both schemes was to ensure a modern open plan living environment with separate quiet spaces, connecting indoor and outdoor living. A relationship that was lacking in the existing property.

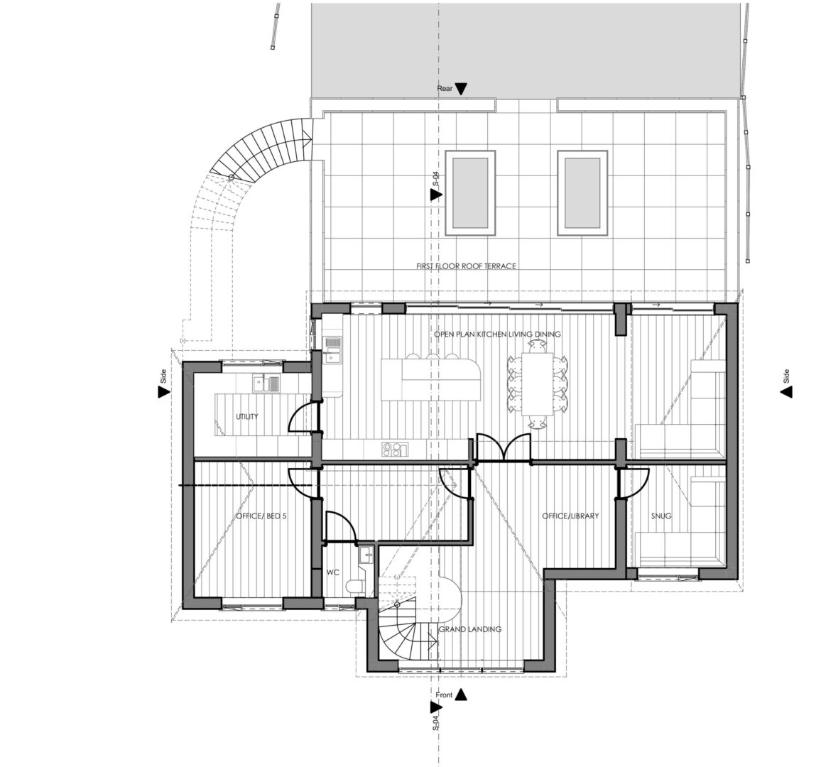
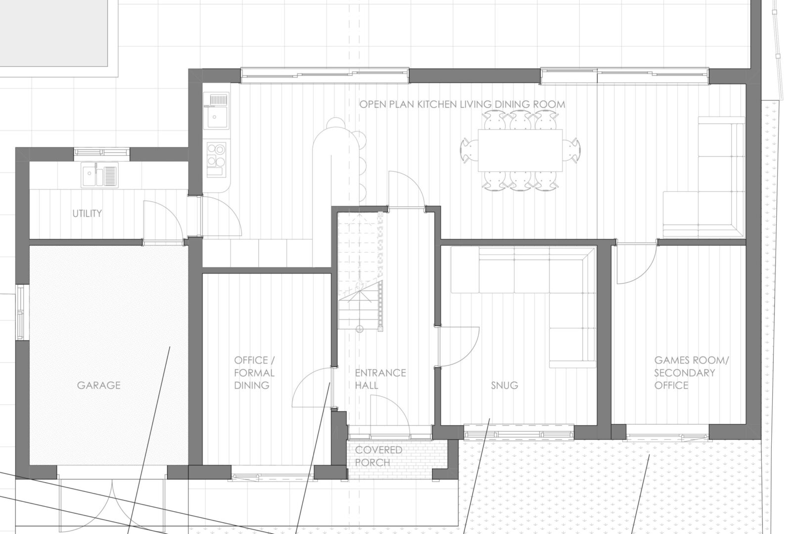
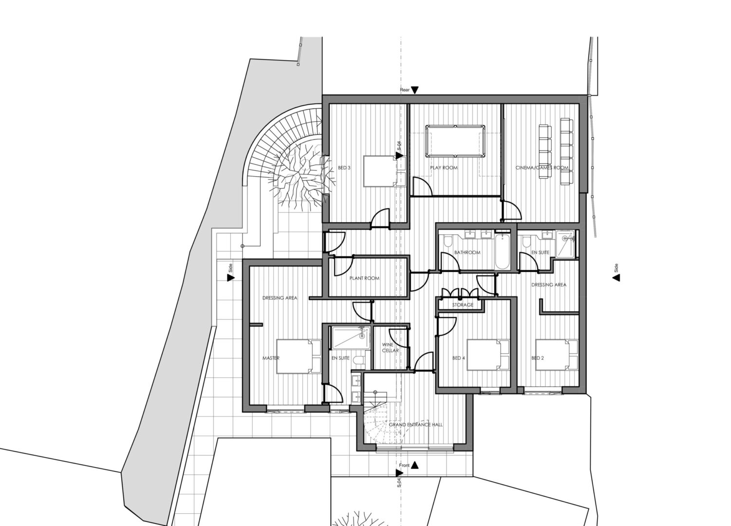
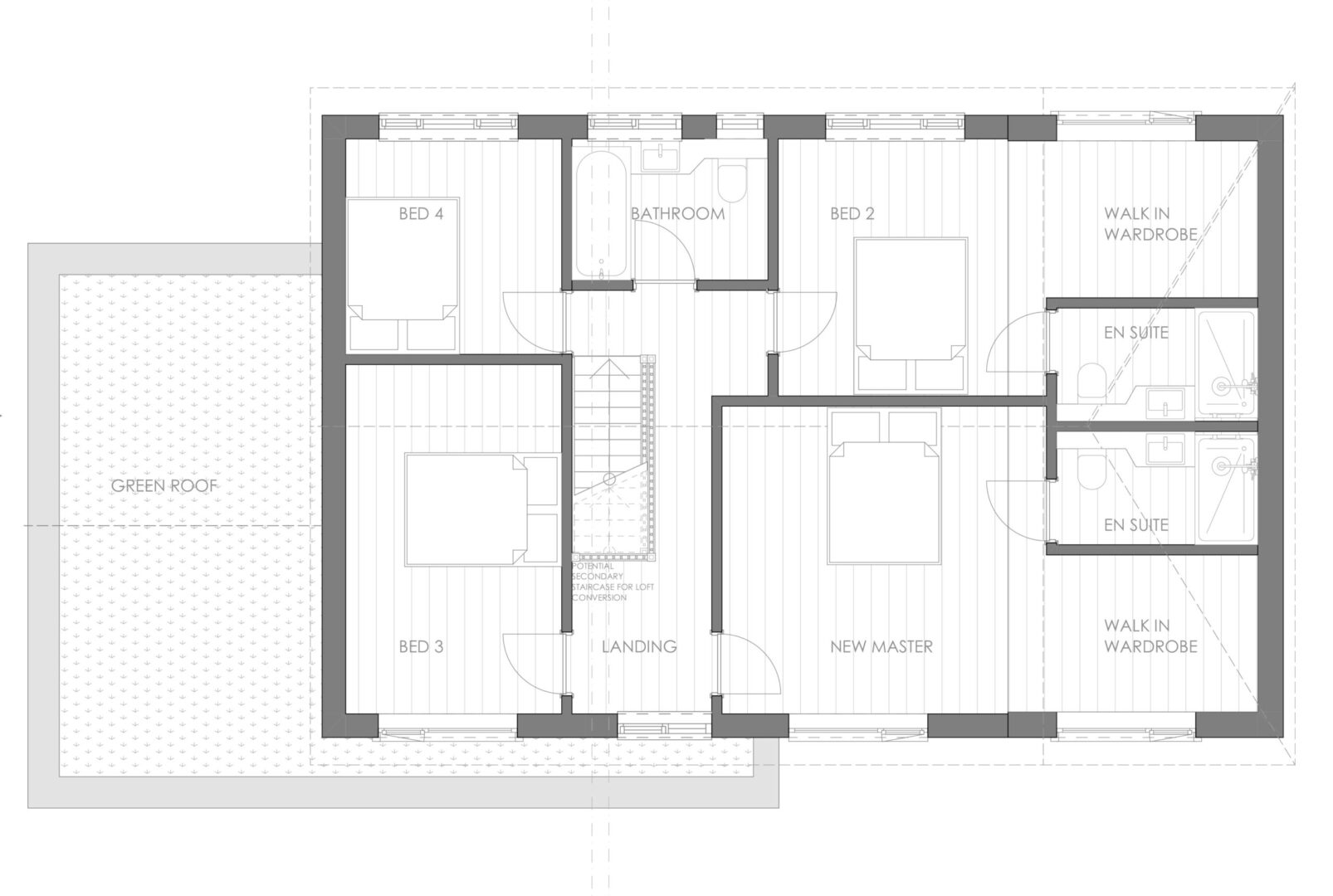
Option 1 was designed to be an upside-down house, with sleeping quarters at ground floor level and living spaces on the first floor. This scheme takes advantage of the topography of the site by building into the rear garden and using the roof of the single-story extension to complete a direct access onto the relandscaped garden. Creating a seamless indoor-outdoor transition from the living area. A new dominant gable has been added to the front elevation creating a focal point on the grand entrance. It also houses the impressive open office library and hall which provides views back out across the valley like terrain of Kingsland. The remaining rooms at the front of the home, include ancillary quiet spaces which could be used as guest bedrooms or offices.

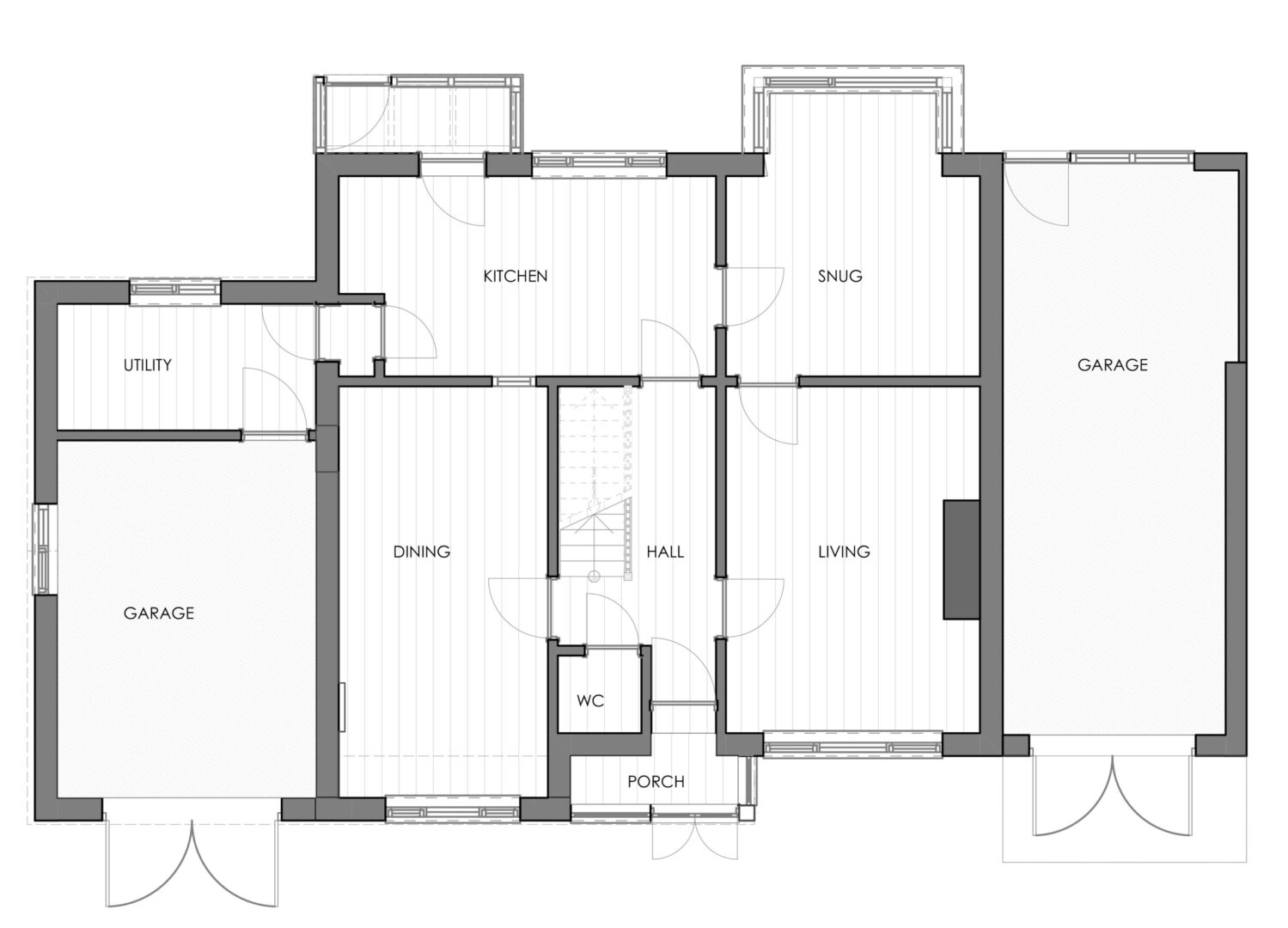
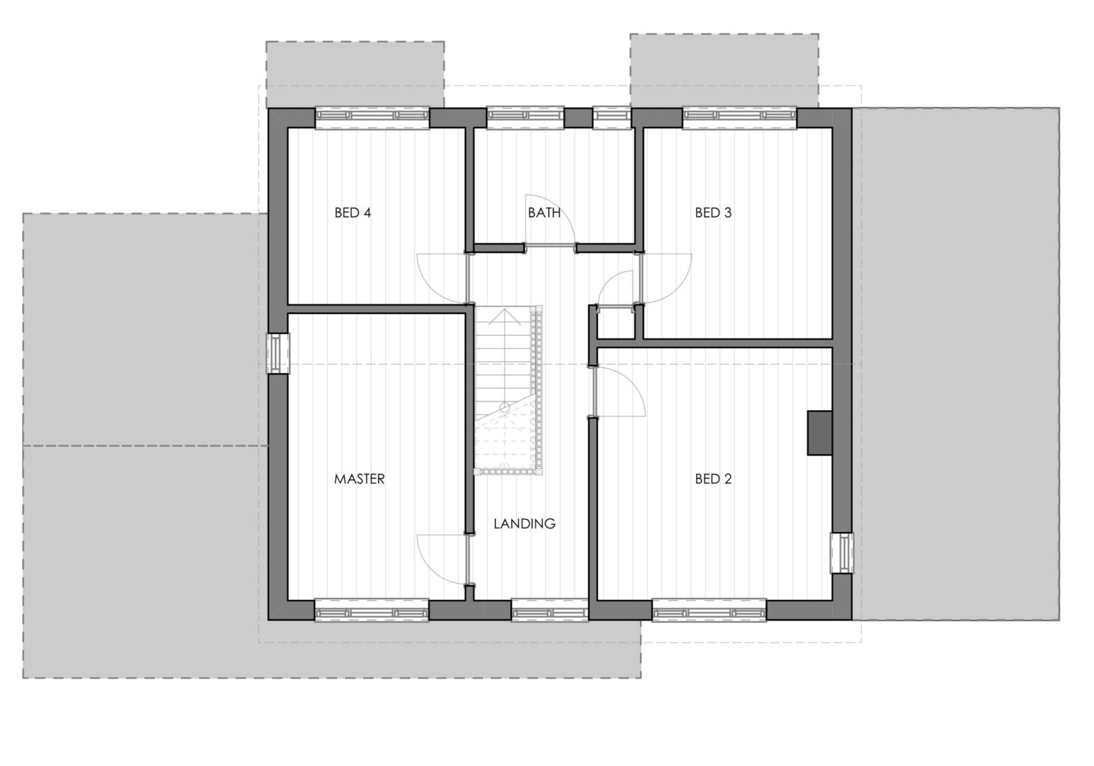
Option 2 removes some of the internal non-structural walls to create more user-friendly spaces as well as allowing for the extension into the garage to create a large open plan kitchen living space and separate quiet snug room. New rear sliding doors increase natural light coming into the home, as well as providing the much sought-after relationship between indoor and outdoor spaces. On the first floor, the extension over the garage allows for an enlarged master and second bedroom with an ancillary walk-in wardrobe and en suite.

 

  • Private Client
  • Kingsland, Shrewsbury
Delivered by
Richard Cole
Back to Architecture