Mosewick Farm.

Mosewick Farm.

 


Project Overview

We were approached by our client who had the vision to rebuild and convert some of the traditional farm buildings on their land to create a base for the charity RESET.

RESET was established by two friends in 2019 and is focused on promoting and protecting the physical and mental health of serving and former members of the emergency services, medical and nursing professionals and the armed forces. The charity provides participants of their courses a chance to stop, pause, reset, and recharge in nature. Their ethos is founded on prevention, not treatments.

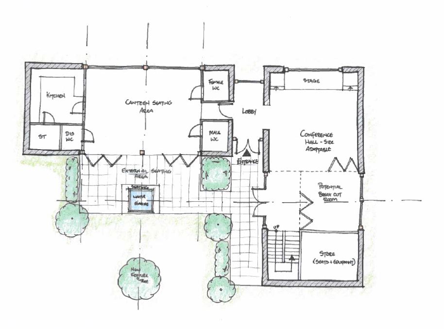
The brief for our Architectural team was to provide a space where people can stop, pause, reset and recharge in nature. The conversion consisted of the refurbishment and rebuilding of the traditional oak frame barn and includes the reinstatement of the former stone barn extension with a new contemporary style approach that compliments the main building. The small derelict oak framed cottage with brick infills will also be re-built with a sympathetic design approach to retain some of its heritage characteristics.

The planning proposal for Mosewick Farm involved close cooperation with the Local Planning Authority and consultees. The outcome was an application which united statutory consultees in their support. Receiving no objections and enthusiastically supported by Herefordshire Council’s Planning Committee.

The committee commended the design and attention to detail to provide biodiversity betterment, landscape enhancements, and the protection of non-listed heritage assets. With one of the committee members commenting that “The end use could not be more important”, which could not be truer.

Having successfully secured planning permission and delivering RIBA Stages 1-3, we are now currently working on RIBA Stage 4: Technical Design.

  • Mosewick Estate LLP
  • Longley Green, Herefordshire
  • RIBA Stage 4: Technical Design
Delivered by
Richard Pidduck-Smith
Phoebe Farrell
Back to Architecture